建物図面が斜めになってしまうのですが
本ページにはプロモーションが
含まれていることがあります
.png)
【質問】
平成22年度問22で、問題文の指定通りに土地の境界点をプロットすると、建物図面が斜めになってしまうのですが、これはなぜですか?
【回答】
この年は、配布された答案用紙に最初から方位が印刷されていたのです。
以下のような感じですね。

ご覧の通り、少し斜めになっていますよね。
つまり、北の方向は用紙の真上ではないのです。
そのため、プロットするにあたっては、この方位に定規を合わせてプロットする必要があります。
以下のような形ですね。

このように配置しなければ、正しい位置にプロットすることができません。
ただ…ですね。
本問では、問題文の中に21番の建物と22番の建物のそれぞれの建物図面が掲載されています。
それをご覧いただくとお分かりの通り、最初から方位が斜めになっていることが確認できるんですよね。
そして、どちらも敷地・建物が用紙に対してまっすぐに記載されています。
だったら、方位は一旦無視して、この表示されている建物図面の通り、つまり、そのまま用紙に対してまっすぐに敷地を記載してしまえばいいのでは?と思われます。
実際の本試験問題では、21番と22番の各図面の方位がわずかにズレており、ABCやEFGが直線でないかもしれないと疑わせる仕掛けがあるのですが、「見取図」にそれぞれの筆界が直角に交わる旨の記号が付されているので、どう考えても直線にしかなりません。
そのため、わざわざプロットするよりも、シンプルに縦25m・横30mの敷地形状を書き、そこにそれぞれの建物図面で明らかになっている筆界からの距離で、建物の形状を書きこんでしまえばいい、ということになります(あとは足りない筆界線とヒゲ線を書き足すだけ)。
この方が圧倒的に早いですね。
本記事執筆時点で、方位を斜めにしている建物の問題は本問のみです(※平成17年度より古いものは知りません)。
チャレンジングな出題だったと思いますが、上記のようなショートカットのバグが判明したので、この手の問題は作られなくなったのではないかと推察します。
本問の出題ミス
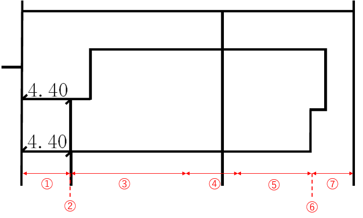
ちなみに、時々ご質問を頂くので記載しておきますと、本問には出題ミスがあります。
「見取図」から東西の敷地の距離を読み取ると、18.00+12.00=30.00mとなるはずです。

一方で、既存の建物図面と各階平面図の数値を足し合わせると、30.10mになってしまいます。
西から東に向かって見ていきましょうか。

① 4.40m … 西側の筆界から建物の「外壁」までの距離
② 0.10m … 建物の外壁から中心線までの距離
③ 9.90m … 合体前の21番の建物の東西の距離(※中心線)
④ 5.00m … 増築部分の距離
⑤ 6.75m … 合体前の22番の建物の東西の距離(※中心線)
⑥ 0.10m … 建物の中心線から外壁までの距離
⑦ 3.85m … 建物の「外壁」から東側の筆界までの距離
4.40+0.10+9.90+5.00+6.75+0.10+3.85=30.10
おそらく、②か⑥のいずれかを見落としたか、壁厚そのものを0.10と勘違いして数値を設定したかのどちらかだと思います。
本問を解かれる方は、上記の部分については目をつぶり、建物図面の東西の離れだけを意識して作図するようにしましょう。
